Sandor – Individual project

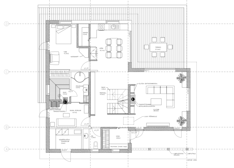
We made the house project ourselves. It was important to us that the house was planned in such a way that the terrace gets as much sun as possible during the day. It was also important to have a sauna inside the house.
0 likes

Type of architectural project

Customer feedback

Room solution
Rated 4 out of 5

The sizes of the rooms are sufficient. In retrospect, we might change the layout of the rooms on the 2nd floor.

External solution
Rated 5 out of 5

We are very satisfied with the color scheme. I especially like the stone roof of the house with a smooth profile.

Read more